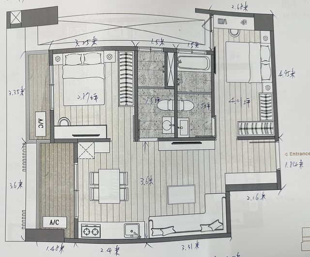
小弟簽了一間小2房的預售屋,室內17坪,一直在思考電器櫃該怎麼設置! 傢配圖上感覺冰箱旁的櫃子應該是放不下,只能放一台冰箱, 若是把餐桌當電器桌,不曉得電線好不好拉線? 另請教依傢配圖是不是只能放兩台冷氣室外機? 還是到時候依管委會規定? 頭一次買房不是很懂,還望賜教! https://i.imgur.com/8ki22zJ.jpg
-- ※ 發信站: 批踢踢實業坊(ptt-site.org.tw), 來自: 58.115.175.252 (臺灣) ※ 文章網址: https://ptt-site.org.tw/home-sale/M.1692527230.A.4F4
idmaker: 客變在廚具後面的中島增設獨立迴路的插座 08/20 18:39
iceonly: 室外機可以疊吧;看不出來放不下的理由,你是要買多大台 08/20 18:40
angele: 室外機問題不大,電器櫃如果裝在餐桌下方很像是中島,問設 08/20 19:02
angele: 計師吧。倒是主臥跟次臥不曉得有沒有機會對調,主臥室採 08/20 19:02
angele: 光比較差。 08/20 19:02
TUZom: 學生妹被包養多嗎 08/20 19:02
justplayit: 沙發不要做到三米,冰箱放水槽旁邊比較順手也剛好隔開 08/20 19:07
justplayit: 沙發區。 08/20 19:07
justplayit: 原本冰箱位置改整面電器櫃,記得加設專迴 08/20 19:08
icexice: 取消餐桌,做中島,可兼餐桌、備餐檯及電器櫃 08/20 20:45
themlb09: 2房不要這麼大沙發區,縮小成2.7X.2.6m,可多做一整排櫃 08/20 21:04
Jiulon: 亞洲最大包養網上線啦 08/20 21:04
j401f2: 這個隔局很好啊 擔心太多了 08/20 21:33
dondon0419: 弄中島餐桌啊 08/21 00:25
maxcockroach: 蠻多大大建議中島,我也納入考慮的,感謝大家! 08/21 12:58
seibu: 格局不錯 幾乎沒有空間浪費 08/21 14:51