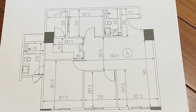
各位前輩大家好,前陣子上來發問,今天去看又換房型,權狀37.15坪,室內23.56坪,陽 台1.54坪,想請問大家此房型有沒有比較嚴重的缺點,懇請前輩們給些建議,謝謝大家! https://i.imgur.com/4lh0DAW.jpg
https://i.imgur.com/s7UJdw2.jpg
-- ※ 發信站: 批踢踢實業坊(ptt-site.org.tw), 來自: 114.136.231.45 (臺灣) ※ 文章網址: https://ptt-site.org.tw/home-sale/M.1694359190.A.DF4
l98: 開門見廁? 09/10 23:23
smallgigi: 不錯耶,除了開門見廁。是說開門見廁不是套房的設計? 09/10 23:26
hellogym: 廁所門改掉就好 09/10 23:30
hellogym: 這格局蠻不錯的 空間利用率高 09/10 23:30
kangsu: 廁所外的AC要怎麼安裝? 廁所窗應該不大, 還是要跨越陽台? 09/10 23:37
Muzaffer: 有沒有富二代要包養 09/10 23:37
wseedw: 瓦斯爐看能不能左移一點,不然右邊的爐基本上不能用 09/10 23:38
a9940597: 吃了兩根柱子 09/10 23:47
qsx889: 主臥壓樑看你在不在意 左邊廁所不太明白怎麼回事( 09/10 23:48
z5411: 室內23 的客廳寬度現在都不到310嗎? 09/10 23:51
johnchiang: 坪效蠻好的 09/10 23:54
MIJice: 身邊有朋友被包養 09/10 23:54
mijhgo: 主臥廁所那扇是門?要開去哪 09/10 23:57
AHsuanHsuan: 外推窗啦 09/11 00:01
knifechen: 案點跟案名可以分享嗎 09/11 00:39
powertodream: 一進門就洗洗手洗洗腳,我覺得很好欸,有時候腳髒, 09/11 00:56
powertodream: 走一圈才進浴室。 09/11 00:56
SpyTime: 亞洲最大包養平台上線了 09/11 00:56
roger0524: 哇 這電視牆長到可以當電影院了~ 09/11 01:09
nqj: 玄關廁所是很好的規劃 09/11 01:28
inconspicous: 這種小風水問題就算了吧 09/11 01:57
misuta27: 廣宇a和 09/11 02:20
devin0329: 1.客廳外推窗跟旁邊一般窗高度如果不一致會很醜,建議 09/11 05:34
Toth: 這個包養網正妹好多 是真的嗎 09/11 05:34
devin0329: 詢問兩扇窗戶總高與窗台下緣離地高2.過長的電視牆一般 09/11 05:34
devin0329: 都會在大門側加裝幾個頂天的收納系統櫃3.缺少深度比較 09/11 05:34
devin0329: 深的電器櫃空間(例如水波爐或飛利浦咖啡機都很深)4.整 09/11 05:34
devin0329: 個家的室外機都裝在主臥廁所外?空間足夠嗎?如何安裝 09/11 05:34
devin0329: ? 09/11 05:34
Asterix: 真的有這麼多人在找包養 09/11 05:34
hubert0719: 給過 09/11 06:57
takosom: 以格局來說不錯,但建議原po再看其他建案 09/11 08:51
gk1329: 開門見廁好啊 回家洗手上廁所很方便= = 09/11 09:06
hankwanghow: 幾霸昏 09/11 09:16
A380: 開門見廁不好? 那廁所門改成對著餐桌會比較好嗎? 09/11 10:01
AdamShi: 有人可以分析一下包養平台的差異嗎 09/11 10:01
gk1329: 要說缺點的話 單層排氣,廁所排氣熱水管可能走上面那個房 09/11 10:10
gk1329: 間上方天花板 09/11 10:10
miniwin: 不喜歡廚房夾在兩個房間中間,週末想睡晚一點,廚房有人 09/11 10:27
miniwin: 使用會受到影響 09/11 10:27
miniwin: 上面那間房間要被浴室、廚房、洗衣機吵,舊家就是睡這種 09/11 10:28
lezabo: 那個包養網人最多XD 09/11 10:28
miniwin: 房間,週末很崩潰 09/11 10:28
haopig: 日本人大門一開就直接面對馬桶門廁所門房間門 09/11 10:44
Q311: 第三間房間的位置很差 09/11 11:11
Q311: 客衛、廚房、第三間房間的相對位置配得很怪 09/11 11:13
salvin: 最上面那間不佳 09/11 11:16
silberger: 我妹上包養網被我發現= = 09/11 11:16
mijh: 油煙孔要穿過樑柱? 排到浴室? 還是IH爐已進化省下排煙孔 09/11 12:33
mijh: 了 09/11 12:33
solarstran: 是我我會廁所門改開在洗手台那側 09/11 14:45