作者slippinjimmy (正義為你加速)
標題[請益] 預售三房格局請教
時間2023-10-03 13:07:30
圖一
https://i.imgur.com/8k3dhJx.jpg
圖二
https://i.imgur.com/L9PGI0S.jpg
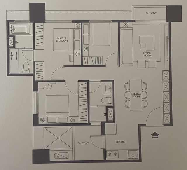
在猶豫這兩間格局
圖一沒有玄關,主臥衛浴的門在中間(習慣不關門,這樣洗澡變一定要關門)
圖二有玄關但也沒大到可以放鞋櫃只能門後收納小東西。廚房備菜檯面小,想增加中島電器
櫃但看圖面似乎找不到位置設計
這兩間要選的話會怎麼選呢?或是還有我其他地方沒注意到的在請提醒謝謝~
----
Sent from
BePTT on my iPhone 13 mini
--
※ 發信站: 批踢踢實業坊(ptt-site.org.tw), 來自: 111.83.99.157 (臺灣)
※ 文章網址: https://ptt-site.org.tw/home-sale/M.1696309652.A.CE6
推 maxcockroach: 110/03 13:29
→ shliau: 選室內坪大的10/03 14:04
推 realmd: 1 門非常好解決 2就敗在玄關室內柱全吃 多花錢又卡裝潢10/03 14:06
→ realmd: 不過如果2其他條件好的話 也是可以把廚房那面7牆拆掉10/03 14:12
→ realmd: 裝潢的部份就是和設計師討論 各種方式處理,原本那面我猜 10/03 14:25
推 peernut: 求包養...管飽就好XD 10/03 14:25 → realmd: 是要擋開門見灶 10/03 14:25
推 abdd123413: 1浴缸有景,完勝 10/03 14:29
推 abdd123413: 2主臥床位怎麼放都不好,靠左面廁所頭上有梁,靠右動 10/03 14:32
→ abdd123413: 線不佳,靠窗有風水問題XD 10/03 14:32
推 benson502: 1完勝,2光是吃一根完整柱子就很不爽 10/03 15:44
推 xikimi: 阿姨!我不想努力了(求包養) 10/03 15:44 → imlucky: 2那根通天柱看了就不爽 10/03 15:47
推 a1379: 1完勝 泡澡看景 10/03 16:50