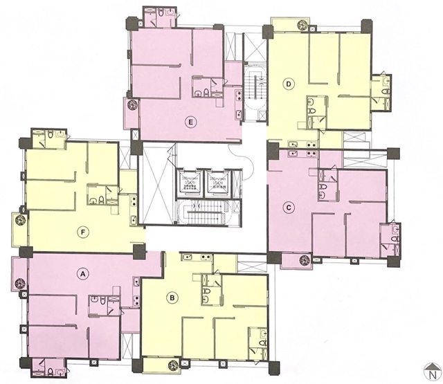
這是目前看的一間預售 衛浴以及三房都有開窗,室內約25坪 東、南、北面皆是透天住家 目前有考慮B/C/D中低樓層 想請教前輩,格局上有什麼可以注意的部分/優劣呢? 謝謝。 https://i.imgur.com/LUCe3yj.jpg
-- ※ 發信站: 批踢踢實業坊(ptt-site.org.tw), 來自: 49.217.65.68 (臺灣) ※ 文章網址: https://ptt-site.org.tw/home-sale/M.1697382968.A.504
abdd123413: 我認為D>C>B,陽台照光通風較佳,阿冷氣室外機要放哪 10/15 23:24
abdd123413: ? 10/15 23:24
final9711: D會吹到東北風 但台中應該還好 10/15 23:30
shliau: C的門後還能做個電器櫃 10/15 23:36
peheart: 這建案居然沒有在中間塞2房!! 10/15 23:40
Kimbel: 真的有這麼多人在找包養 10/15 23:40
Schwarzer: @abdd123413 10/15 23:49
Schwarzer: 陽台右側 10/15 23:49
brightest: C/B朝南 C比較方正 10/15 23:51
blargelp: 幾層樓啊 六戶兩梯 層數高就等超久 10/15 23:53
Keade0325: C B D 三個選 XD 10/16 00:02
tale1890: 有人可以分析一下包養平台的差異嗎 10/16 00:02
pumilk: C,不喜歡BD一進門就是廚房 10/16 00:25
alzheimer: c吧,D突出一個廁所好怪 10/16 03:37
rstpiopxo: 6戶2梯 算正常嗎XD 10/16 07:16
Goog1e: 沒分類 10/16 11:24